Forside / Køb / Vest- og Sydsjælland / Holbæk / Andre typer / Tølløsevej 3 - 5

Projektejendom med 10 lejligheder

Tølløsevej 3 - 5, 4340 Tølløse
Andre typer til salg
Projekt
Tølløse centrum
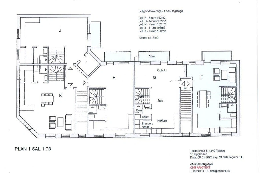
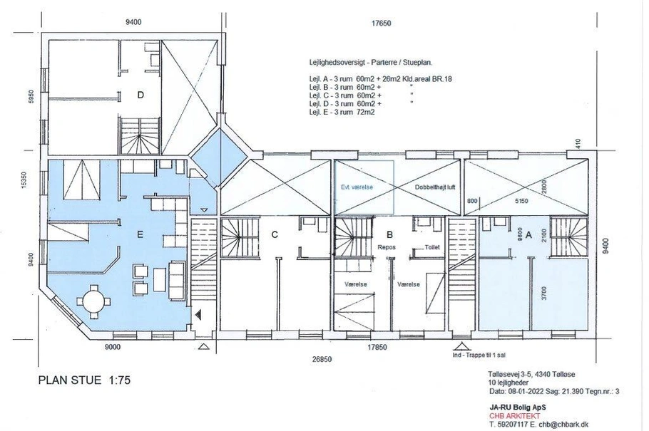
Projektet principgodkendt og projektet forventes at blive tilbudt med lokalplan. Den røde murstensbygning på Tølløsevej 5 skal ligeledes rives ned efter overtagelse. Der er indhentet tilbud på nedrivning og bortskaffelse på ca. kr. 150.000.- med tillæg af moms.Der bliver etableret torv og vejen bliver lukket jf ovenstående skitse ( Ny Plads ).De 118 m2 omhandler den tilbageværende bygning på Tølløsevej 5. Projektet omhandler 4 lejligheder i 2 plan - lejlighederne A-D hver på 60+26 m2 , Lejlighed E på 72 m2 ( 1 plan ) og lejlighederne F-J på 102 m2 og lejlighed J på 126 m2. Lejlighederne F-J er alle i 1,5 plan.
Placering af Tølløsevej 3 - 5, 4340 Tølløse
home HOLBÆK
Se hos mægler
Sagsoplysninger
Sagsnr
2010004488
Telefonnummer
Se telefonnummer {{ phone }}
Email
Se email {{ email }}
Økonomi
Pris i kr.
3.000.000 kr.
Pris pr. m² kr.
25.423 kr.
Årlige driftsudgifter kr.
12.975 kr.
Årlige driftsudgifter pr. m² kr.
109 kr.
Lokalet
Etageareal
118 m²
Grundareal
1.137 m²
Energimærke
Ikke krav om energimærke
Anvendelse
Andre typer