Forside / Leje / Københavns omegn / Brøndby / Kontor / Midtager 26B

Gode parkerings forhold

Midtager 26B, 2605 Brøndby
Kontor til leje
185m² billige lyse kontorerpå 2. sal
Bygningen er opført i 1970 og fremstår pæn.

Opgangene er nymalede og der er lagt ny asfalt omkring bygningen. Skiltepylon mod Midtager udskiftes.

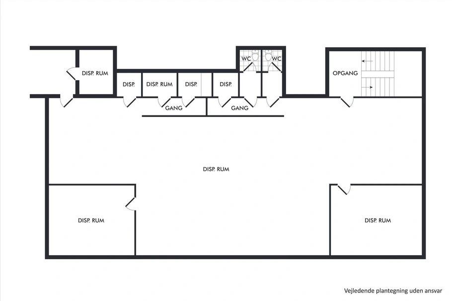
Adgang til lejemålet er via en lys fælles opgang.

Lokalerne er oprindeligt anvendt som kontorer, men kan også anvendes som en kombination af kontor og lager.

Lejemålet ligger i opgang B og udgør 185 m².

Lokalerne er i pæn stand og fremstår med lyse trægulve (lamelparket) og sorte gulvtæpper.

Lejemålet er indrettet som et stort rum med to kontorer eller møderum og dermed velegnet for showroom, storrumskontorer m.v.

Lejemålet har toiletsektioner til to køn og mulighed for brus, for dem der cykler, samt et flot moderne køkken.

Lejemålet har en vareelevator, som gør det let tilgængeligt at oplagre varer og andre goder. Endvidere, har lejemålet en rampe, som er til fri afbenyttelse, hvorfra der er adgang til vareelevatoren. Rampen har lift så varer kan løftes fra jordplan op til rampen, hvis det ønskes.

Det er muligt at udvide lejemålet til et stort lejemål på 426 m², se evt. sag 27801031, såfremt det ønskes.

Bygningen har et godt udenomsareal og dertil gode tilkørselsforhold, hvor lastbiler og andre varevogne kan køre til, læsse af og køre ud uden at skulle vende.
Placering af Midtager 26B, 2605 Brøndby
EDC Erhverv Poul Erik Bech / Ibo, Herlev
Se hos mægler
Sagsoplysninger
Sagsnr
278820588
Telefonnummer
Se telefonnummer {{ phone }}
Email
Se email {{ email }}
Økonomi
Årlig leje
87.875 kr.
Årlig leje inkl. drift
87.875 kr.
Md. leje inkl. drift
7.322 kr.
Årlig leje inkl. drift pr. m²
475 kr.
Lokalet
Etageareal
185 m²
Energimærke
Ikke krav om energimærke
Anvendelse
Kontor
Kontor
Faciliteter
Rampe